今夜は9月下旬ごろにブログに書いたトイレリフォームの準備編の続きを書きたいと思います。
こんばんは。家じゅう丸ごとお任せくださいのよしかわでんきです。

解体した後に下地などが出来上がってきたので給水管と排水管の準備をします。

仕上がりはこんなイメージです。

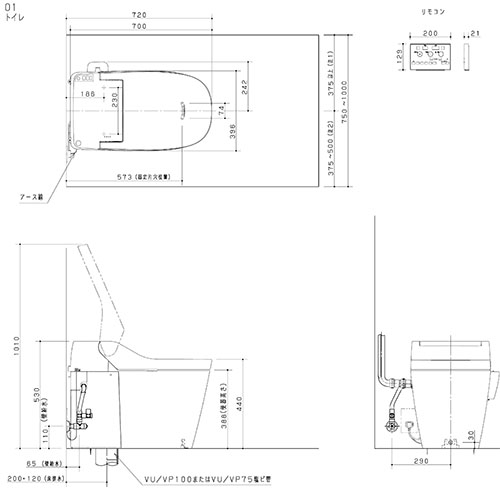
このような図面を見ながら給水管、排水管、便座用の電源を配置していきます。

給水管と電源の位置を決め配管と配線を行います。位置をしっかり確認しておかないと仕上げの時に困ったことになるので何度も何度も確認します。

排水管も所定の位置に配置しました。後は内装工事が終われば便器の組付けや手洗い取付が待っています。完成の様子はまたブログで報告させていただきますね。
S様ご依頼ありがとうございます。
性別:男性
誕生日:4月23日
自己紹介:地域に愛される「まちのでんき屋さん」を目指して日々奮闘中!
・・・もっと詳しく見る
甲賀市・伊賀市(柘植・西湯船・東湯船・小杉・玉瀧)で
家電修理・リフォーム・太陽光
蓄電池・パソコンのことなら
有限会社よしかわでんき
TEL: 0748-88-2171
お問い合わせはこちらから
当店のLINEです↓
お友達になってもいいよという方は、お名前と元気が出そうなスタンプを送ってくださいね。
当店に用事がある時はLINEからも連絡いただけます。写真なども送れるので便利ですよ。
以下のバナーを押していただくとランキングが上がる仕組みになっています。甲賀市の方々のお困りごと解決のためより多くの方に知っていただきたいです。
ご協力ありがとうございます。
